Lauziere-dessus
- Avis 4.75/5
-
Gamme classique
- Jusqu'à 4 personnes
- Studio
- Ménage de fin de séjour
Partager cette annonce





Points forts, services et équipements
- 5ème étage
- Animaux (supplément 40€)
- Linge de lit (non inclus)
- Serviettes (non inclus)
- Ménage de fin de séjour inclus
- Ski au pied
- 80 m. des commerces
- 400 m. du centre
Description
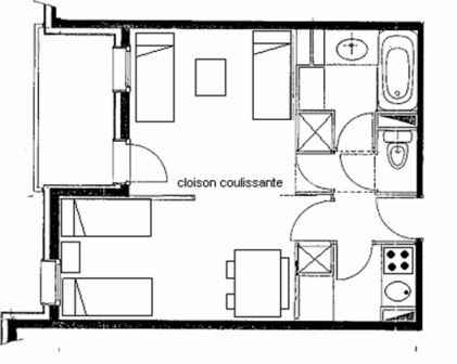
Hameau de crève-coeur - studio divisible, de 27m²,
situé au 5ème étage, avec ascenseur,
de la résidence lauziere-dessus,
pouvant accueillir jusqu'à 4 personnes.
entrée, cuisine indépendante avec passe-plat, salon divisible par une cloison mobile avec de part et d'autre 2 banquettes simples (4 couchages).
salle de
bain et wc indépendants.
Balcon indépendant exposé nord-ouest avec une vue sur la montagne et les pistes.
Service inclus : ménage de fin de séjour (sauf cuisine).
Casier à skis.
LINGE DE LIT NON INCLUS
APPARTEMENT NON FUMEUR.
ANIMAUX ACCEPTÉS.
Possibilité de louer une place de parking intérieure ou extérieure. Nous consulter.
• Equipements : Lave vaisselle, Micro ondes , Plaque de cuisson , Réfrigérateur, TV, Ascenseur, Bouilloire, Détecteur de fumée, Grille Pain, Machine à café
• Configuration :
- Espace repas et salon 10m² (2 banquettes simples (2 couchages))
- Cuisine indépendante avec passe-plats 2.5m²
- Espace nuit 8.8m² (2 banquettes simples (2 couchages, matelas neufs déc 2018))
- Salle de bain 3.1m²
- Wc indépendant 0.8m²
- Entrée 1.8m²
- Balcon indépendant 3.2m² (Surface non comprise)
Capacité maximale 4 personnes | Pas de fête ni de soirée.
Référence #95713
Localisation
À noter
Règlement
• 30% d'acompte à la réservation
• Solde au plus tard 30 jours avant l'arrivée
L'arrivée / le départ
• Remise des clés entre 17 et 19 heures en agence immobilière
• sortie de l'appartement à 10 heures (au plus tard)
Annulation / modification
• Jusqu'à J-45 Annulation sans retenue
• De J-44 à J- 30 30% du montant total retenu
• De J-29 à J- 15 75% du montant total retenu
• A partir de J-14 100% du montant total retenu
Commentaires des vacanciers
-
Propreté
-
Situation
-
Tranquillité
-
Qualité-prix
-
Mireiaj847 Fév. 2023 entre amis
Très bien situé. Propre. Tout ce qu'il faut pour passer un bon séjour, que ce soit pour skier ou visiter le village, faire toutes les les activités proposées par la station.
Des questions ? Nous avons les réponses.
Réservation, arrivée, paiement... consultez notre centre d'aide pour trouver les éléments de réponses recherchés.
-
Comment déposer un dossier avec Départ 18:25 ?
Il n'y a pas de dossier à déposer ou d'inscription à effectuer : il suffit de réserver un séjour en...
-
Combien de fois puis-je bénéficier du dispositif Départ 18:25 ?
Vous pouvez bénéficier de l'aide financière qu'une seule fois par année civile (une fois en 2025, une fois en 2026...)...
-
Comment bénéficier du dispositif Départ 18:25 ?
L'aide Départ 18:25 est compatible uniquement avec les offres proposées sur lesstations.com. Elle se présente sous forme de déduction financière...
-
Quels sont les moyens de paiement acceptés ?
Nous acceptons les règlements par carte bancaire, chèques vacances papiers et chèques vacances Connect.
-
Comment régler à plusieurs ?
Vous pouvez tout à fait utiliser des cartes différentes pour le paiement de l'acompte et du solde. Il est possible...
Récapitulatif et options
À régler sur place
- Taxe de séjour par personne (+18 ans) et par nuit
- Caution : 700 € (CB ou chèque détruit au plus tard 14 jours après votre départ)
-
30 000 biens sélectionnés
-
Pas de frais de dossier
-
Carnet de voyage pour votre arrivée
-
Garantie départ de l'APST