Le roc

Valmorel, France
  • Gamme classique
  • Jusqu'à 4 personnes
  • 2 chambres
  • Ménage de fin de séjour

Points forts, services et équipements

  • 1er étage
  • Animaux (non acceptés)
  • Draps (1er jeu) inclus
  • Serviettes (non inclus)
  • Ménage de fin de séjour inclus

Description

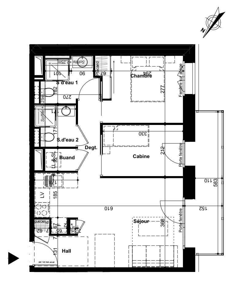
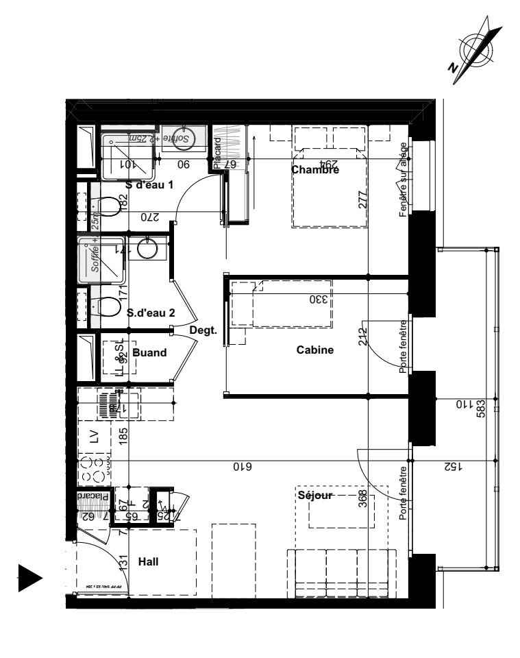
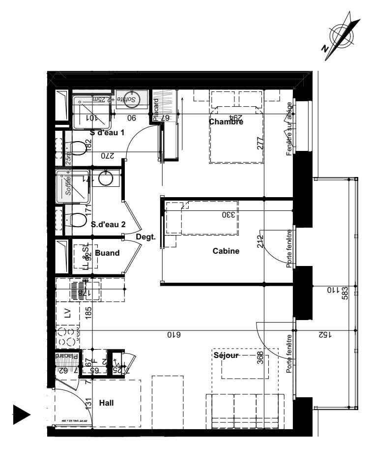
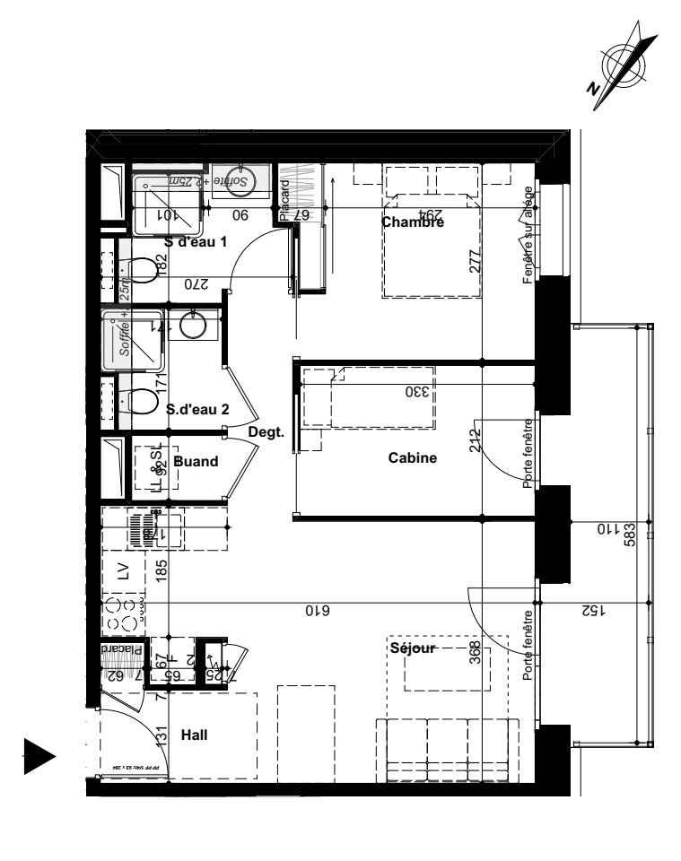
Appartement neuf, t2 + chambre cabine de 49.90m², au 2ème étage avec ascenseur de la résidence le roc. pouvant accueillir jusqu’à 4 personnes.

orienté sud- ouest avec une magnifique vue sur le massif de la lauzière depuis le balcon.

entrée, donnant sur la pièce à vivre avec sa cuisine entièrement équipée ouverte

sur l'espace repas et salon avec un accès au balcon de 7.7m²

Chambre cabine avec 1 lit superposé ( 2 couchages) avec accès direct au balcon.

Espace buanderie avec une machine à laver et sèche linge.

Première salle d'eau avec douche et WC. Une chambre avec 1 lit double et rangements.

Deuxième salle d'eau avec douche et WC

Service inclus : Ménage de fin de séjour (sauf cuisine), linge de lit (sauf saison d'été*) * de juin à septembre.

Casier à ski avec sèche chaussures.
Emplacement de parking couvert pour une voiture.
Routeur WIFI

APPARTEMENT NON FUMEUR.
ANIMAUX NON ADMIS.

• Equipements : Bouilloire, Cafetière filtre, Cafetière NESPRESSO, Etandage, Four, Lave-vaisselle, Machine à laver, Micro-onde, Plaque à induction, Réfrigérateur, sèche chaussures, Sèche cheveux, Sèche-linge, TV

• Inconvénient :
-1

• Configuration :
- Entrée 2.4m² (Entrée )
- Séjour avec espace cuisine 22.3m² (Séjour ouvert sur cusine toute équipée et espace repas. acces direct au balcon )
- Chambre cabine 7.1m² (Chambre avec 1 lit superposé ( 2 couchages) avec acces au balcon )
- Buanderie 1m² (Banderie avec machine à laver et sèche linge )
- Salle d'eau avec wc 4.2m² (Salle d'eau avec douche avec wc )
- Chambre 10.1m² (Chambre avec un lit double et rangements )
- Salle d'eau avec wc 4.4m² (Salle d'eau avec douche et wc )
- Balcon 7.7m² (Balcon)


Capacité maximale 4 personnes | Pas de fête ni de soirée.
Animaux refusés
Référence #153848

Localisation

À noter

Règlement
• 30% d'acompte à la réservation
• Solde au plus tard 30 jours avant l'arrivée

L'arrivée / le départ
• Remise des clés entre 17 et 19 heures en agence immobilière
• sortie de l'appartement à 10 heures (au plus tard)

Annulation / modification
• Jusqu'à J-45   Annulation sans retenue
• De J-44 à J- 30   30% du montant total retenu
• De J-29 à J- 15   75% du montant total retenu
• A partir de J-14   100% du montant total retenu

Des questions ? Nous avons les réponses.

Réservation, arrivée, paiement... consultez notre centre d'aide pour trouver les éléments de réponses recherchés.

Voir toutes les questions
Total
1546.65€
soit 1547€/p.
Réserver
Ve. 13/03 - Ve. 20/03
1546.65€
soit 1547€/p.
Réserver

À régler sur place

- Taxe de séjour par personne (+18 ans) et par nuit
- Caution 1000 € (CB ou chèque détruit au plus tard 14 jours après votre départ)

  • 30 000 biens sélectionnés
  • Pas de frais de dossier
  • Carnet de voyage pour votre arrivée
  • Garantie départ de l'APST
Ve. 13/03 - Ve. 20/03
1546.65€
soit 1547€/p.
Réserver

Offres à proximité

Ils partagent leurs vacances sur instagram

lesstations