Grand bois b
-
Gamme classique
- Jusqu'à 4 personnes
- 1 chambre
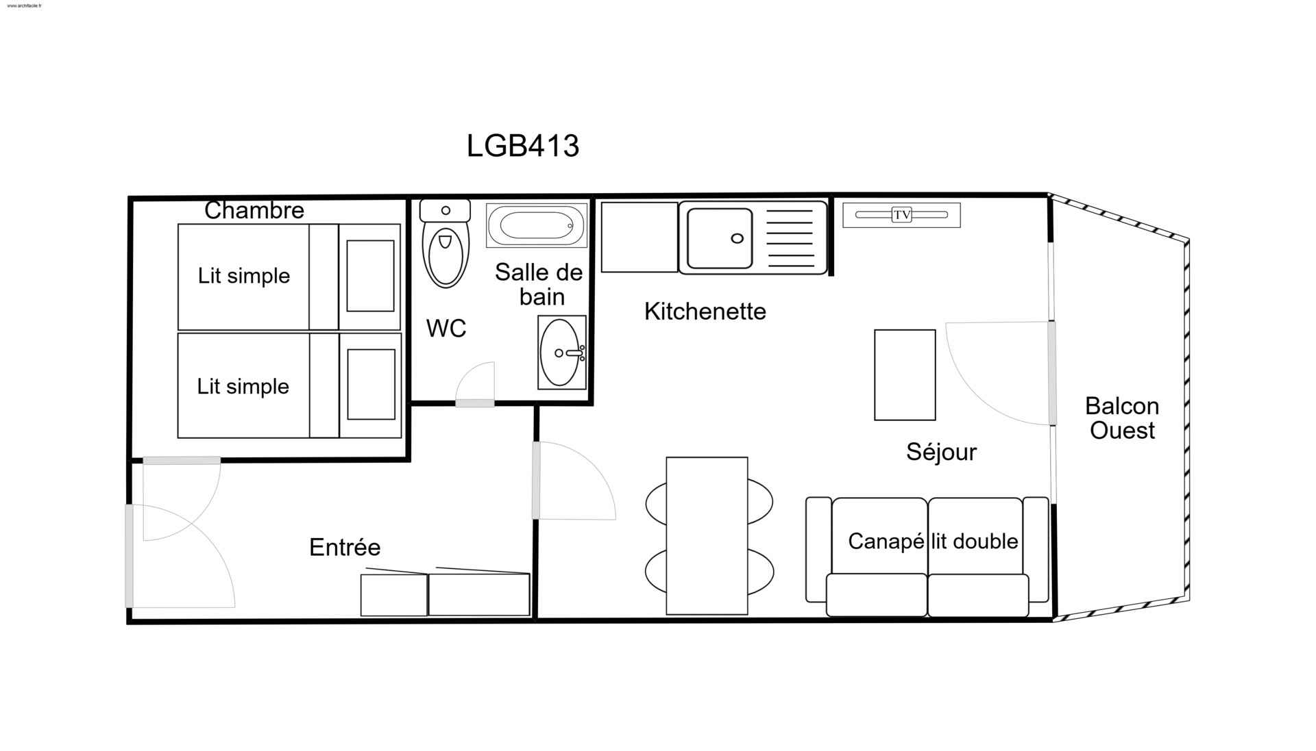
La tania residence le grand bois b n°413 - type c1
classement 2*
2 pièces, 4 personnes, 25m², balcon ouest, 2ème étage
séjour : 1 canapé lit double (140x190cm)
chambre (fenêtre sur coursive) : 2 lits simples (80x185cm)
kitchenette : combiné four micro-ondes, frigidaire, 4 plaques vitrocéramiques, lave-vaisselle, hotte, cafetière
filtre Salle de douche avec toilettes Jolie vue, accès au balcon avec table et chaises. Télévision écran plat incluse NON-FUMEUR – ANIMAUX INTERDITS
Capacité maximale 4 personnes | Pas de fête ni de soirée.
Animaux refusés
Référence #142838
La résidence le grand bois est idéalement située skis aux pieds dans la conviviale et charmante station de courchevel la tania.
courchevel la tania se trouve au coeur des 3 vallées, vous rejoindrez les domaines skiables de méribel et courchevel en 2 remontées mécaniques.
la résidence est proche du centre de la station, où vous trouverez
des commerces, l'esf, une supérette, des bars et des restaurants.
l'arrêt navette est à 100 mètres, ces bus vous emmènent gratuitement à toutes les niveaux de de la station: courchevel saint bon, courchevel le praz, courchevel village, courchevel moriond et courchevel 1850.
Règlement
• 30% d'acompte à la réservation
• Solde au plus tard 30 jours avant l'arrivée
L'arrivée / le départ
• Remise des clés entre 17 et 19 heures en agence immobilière
• sortie de l'appartement à 10 heures (au plus tard)
Annulation / modification
• Jusqu'à J-45
Annulation sans retenue
• De J-44 à J- 30
30% du montant total retenu
• De J-29 à J- 15
75% du montant total retenu
• A partir de J-14
100% du montant total retenu
Réservation, arrivée, paiement... consultez notre centre d'aide pour trouver les éléments de réponses recherchés.
Nous acceptons les règlements par carte bancaire, chèques vacances papiers et chèques vacances Connect.
Il faut dans un premier temps régler votre réservation par carte bancaire afin de bloquer la disponibilité du logement puis...
Oui. Si vous bénéficiez de Chèques Vacances et que votre réservation est validée suffisamment tôt (au moins 36 jours avant...
Oui, vous pouvez régler en ligne directement, comme avec n'importe quelle carte bancaire.
Nous n'avons pas de brochure au format papier ou électronique : toutes nos offres sont actualisées en temps réel sur...
À régler sur place
- Taxe de séjour par personne (+18 ans) et par nuit
- Caution 350 € (CB ou chèque détruit au plus tard 14 jours après votre départ)
Courchevel la Tania, France
04-11 juil.
4 personnes
soit 147€ /p.
Courchevel la Tania, France
04-11 juil.
4 personnes
soit 147€ /p.
Courchevel la Tania, France
27 juin.-04 juil.
4 personnes
soit 137€ /p.
Courchevel la Tania, France
04-11 juil.
4 personnes
soit 147€ /p.